We understand the importance of predictable costs in project planning. Our structured pricing model reflects the scope and complexity of each stage, giving design leads clear, upfront information to manage budgets and deliverables with confidence.
From bespoke homes and extensions to large-scale housing schemes and commercial developments, our experience spans projects of every scale. We support architects and design teams with reliable technical delivery that adapts to each brief, ensuring successful outcomes across the country.
20+
Residential
2
Housing
6
Commercial
From bespoke homes and extensions to large-scale housing schemes and commercial developments, our experience spans projects of every scale. We support architects and design teams with reliable technical delivery that adapts to each brief, ensuring successful outcomes across the country.
20+
Residential
2
Housing
6
Commercial
A 691m2 new build farm house with a very bespoke mixture of construction - Metal, Timber, Render finishes, traditional and SIPS structures, Timber and Masonry kit walls with Ground bearing, I joist and Hollowcore floors. Designed and managed by the Architect, Built by the client and coordinated by OZ.
A 237m2 new build house and garage. Designed to compliment the beautiful surrounding views of the plot. Structures in timber kit and masonry with attic truss and slate roof on a ground bearing concrete floor. Started and approved for Planning, currently in-progress awaiting Building Control approval.
An intricate old existing farm house with proposed open plan Internal alteration and a timber cladding extension to compliment its parent structure. And a change of use garage conversion into 2 accommodations. The building received planning approval and is ready to commence onto the next stage of Building Control.
An existing home with internal alterations, rear and double-storey side extensions, all windows and doors replaced, and fully clad in insulation and brick slips to match its original look. This makeover includes an open kitchen, additional bedrooms, and improved spaces to better serve its residents.
A double storey side extension and internal alterations to transform the client’s existing home, a lot of attention was given to this project by the Architect and OZ incorporating thought-out accessible living spaces, kitchen, bathrooms, garage and platform lift to enable a normal lifestyle for its residents once again.
A front porch extension, contrary to its small size a challenging project to get through Planning and later Building Control due to the building being listed and situated on the first floor of a 2 flat house. The project went through various redesigns and its latest design is currently under construction.
A garden room rear extension for the basement flat of a tenement building that achieved Planning approval in a challenging neighbourhood. Currently in-progress for warrant approval, this timber clad garden room utilises the many screens and glazing to bring in as much daylight for the occupants as possible.
A rear extension and internal alterations to a semi-detached home. Designed by the architect as a permitted development that cruised through Building Control, built fast by the client who’s a builder and now complete to serve its residents with the much needed extra space in their home.
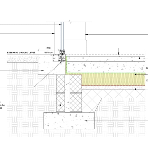
A challenging internal alterations project to the basement of a detached house which had the major issue of flooding occasionally. The Building Control application and approval focused on fixing this issue with various tanking solutions to create a water mitigation strategy currently in-progress on site.
Our service can help Architects and Architectural Designers in several ways: Reduce project overload by providing extra help on a project, avoiding the need for permanent hires and all associated expenses and commitments. Enable Architects and Architectural Designers who lack the technological expertise or resources to continue creating stunning designs with the help of our visualisation, drafting and modelling services.
3D Modelling adds volume to AutoCAD giving it the benefits of the 3rd Dimension, producing drawings in 3D provides:
Efficiency - making a change to a model, updates all drawings instantly;
Clashes - noticing them becomes easier in 3D enabling a fix in the design stages;
Parametric design - Adaptive and intelligent schedule creation.
We can continue listing benefits as it’s really not limited to these. Important thing to remember is that 3D Modelling is the tool enabling the current stage of Architectural evolution and we can navigate these waters with you.
3D Modelling gained wide adoption in Europe in 2009 and we have been actively involved with this technology since 2012, We were ‘BIM technicians’, ‘Architectural Technologists’ and ‘BIM coordinators’ for a range of small and unknown to top AJ 15 companies, actively modelling and working for these practices before the inception of OZ to deliver award winning projects for them which we now aim to showcase under the banner of OZ Technology.
Knowing 3D Software is always a benefit, but no experience is totally fine, that’s why we are here. It doesn’t matter if you’re used to AutoCAD or even hand sketching, we as the Technologists navigate your model for you, we meet online and go through the model together, if you need a drawing we produce it, if you need .dwg formats to send to consultants, we export them for you. In short, we deal with the drawings and enable you to deal with your client and project knowing the Technicals of the project are taken care of.
Our biggest priority is providing a high-quality service and product. We want to continue working with you, it makes sense that doing a good job where you're left happy will give us the best chance at that.
That being said we are commitment to OZ and the goals we are actively working on to achieve CIAT and ISO9001 certificate accreditations.
OZ Technology uses cookies
Cookies make our website work properly and securely. OZ Technology uses functional, analytical and tracking cookies. Learn more about what these cookies mean, how we use cookies and how you can manage them in our cookie policy, by clicking on "More information about cookies".
If you agree to all of our cookies, click on "OK". You will then get the best user experience with brand enriched content & relevant products and services. Do you want to change your cookie preferences? Then click on "Change settings".
Changes settings
Best experience. I accept functional, analytical and tracking cookies. This will give you the best user experience with brand enriched content & relevant products and services.
Customized experience. I only accept functional and analytical cookies.
Working website. I only accept functional cookies. These cookies are necessary for the website to work. Without these cookies, not all elements of the website can be loaded.