
At OZ Technology, we translate design intent into precision drawings that move your project through every key stage — from concept to construction. Our documentation evolves in detail as your project advances, tailored to meet planning requirements, satisfy building regulations, and guide builders with confidence on-site.
Purpose: Gain consent from local authorities.
Detail level: Low to moderate - focused on clarity, intent, and visual communication.
We prepare 3D models, clean drawings, and visual studies to communicate your ideas clearly to planning officers. These drawings show layout, scale, massing, and appearance — enough to make a strong case, without overcomplicating the early vision. Whether it's a new build or an extension, we present your proposal in a way that speaks the language of planning departments.
Planning Typical drawings
Building Control Typical drawings
Purpose: Achieve regulatory compliance.
Detail level: Moderate - introduces compliance-related dimensions, materials, and construction build-ups.
At this stage, your ideas are refined into drawings that demonstrate technical compliance. We produce annotated 2D and 3D documents that respond directly to Building Regulations. Our drawings show insulation values, structural outlines, fire safety zones, simple MEP strategies and more — without jumping too far ahead into bespoke detailing.
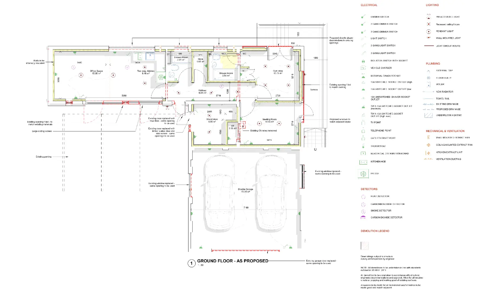
Purpose: Develop buildable detail and coordinate design elements.
Detail level: High - precise construction intent with component-level thinking.
Available exclusively top projects that start from Planning or Building Control stage with us, detailed design is where we build confidence on-site. Our drawings go deeper - coordinating structure, finishes, joinery, services, and interfaces. The aim is to consider every junction. We resolve the detail so that others don't have to. At this stage the 3D models are more than visuals — they're working tools for coordination.
Detailed Design Typical drawings
Construction Typical drawings
Purpose: Guide contractors with clarity and reduce ambiguity on-site.
Detail level: Fit for use.
This is where we become part of your team, supporting the project through site reviews, manufacturer information checks, clash detection, technical coordination, and more. We use our experience to navigate complex site queries until project completion, giving the design its best chance to be realised as intended.
Our service can help Architects and Architectural Designers in several ways: Reduce project overload by providing extra help on a project, avoiding the need for permanent hires and all associated expenses and commitments. Enable Architects and Architectural Designers who lack the technological expertise or resources to continue creating stunning designs with the help of our visualisation, drafting and modelling services.
3D Modelling adds volume to AutoCAD giving it the benefits of the 3rd Dimension, producing drawings in 3D provides:
Efficiency - making a change to a model, updates all drawings instantly;
Clashes - noticing them becomes easier in 3D enabling a fix in the design stages;
Parametric design - Adaptive and intelligent schedule creation.
We can continue listing benefits as it’s really not limited to these. Important thing to remember is that 3D Modelling is the tool enabling the current stage of Architectural evolution and we can navigate these waters with you.
3D Modelling gained wide adoption in Europe in 2009 and we have been actively involved with this technology since 2012, We were ‘BIM technicians’, ‘Architectural Technologists’ and ‘BIM coordinators’ for a range of small and unknown to top AJ 15 companies, actively modelling and working for these practices before the inception of OZ to deliver award winning projects for them which we now aim to showcase under the banner of OZ Technology.
Knowing 3D Software is always a benefit, but no experience is totally fine, that’s why we are here. It doesn’t matter if you’re used to AutoCAD or even hand sketching, we as the Technologists navigate your model for you, we meet online and go through the model together, if you need a drawing we produce it, if you need .dwg formats to send to consultants, we export them for you. In short, we deal with the drawings and enable you to deal with your client and project knowing the Technicals of the project are taken care of.
Our biggest priority is providing a high-quality service and product. We want to continue working with you, it makes sense that doing a good job where you're left happy will give us the best chance at that.
That being said we are commitment to OZ and the goals we are actively working on to achieve CIAT and ISO9001 certificate accreditations.
OZ Technology uses cookies
Our website works properly and securely thanks to cookies that store your preferences. OZ Technology uses functional, analytical and tracking cookies. Learn more about what these cookies do, how we use them, and how you can manage your settings in our cookie policy by clicking on “More information”.
If you agree to all cookies, click “OK” to enjoy the best user experience with brand-enriched content and relevant products and services. Want to change your preferences? Click “Change settings.”
Changes settings
Best experience. I accept functional, analytical and tracking cookies. This will give you the best user experience with brand enriched content & relevant products and services.
Customized experience. I only accept functional and analytical cookies.
Working website. I only allow essential cookies that are necessary for the site to function properly. Without them, some parts of the website may not load correctly.