
Enabling architects and builders to deliver accurate and efficient project outcomes
through advanced architectural technologies, smart workflows, and expert coordination.
We equip architecture and construction professionals and companies with model-based architectural drawings and smart workflows that deliver clarity, precision, and momentum on projects. Our mission is to make high-quality architectural technology accessible for small teams and studios.



Our services are designed to make the technical side of architecture seamless. Whether it's producing precise drawings, creating intelligent 3D models, developing detail libraries, or working alongside you as a project partner, we focus on delivering clarity and reliability at every stage - from planning to construction.

We help you approach planning with clarity and confidence. Through accurate 3D models, technical drawings, and visual studies, we present your ideas clearly to local authorities while staying grounded in buildability. We don't just illustrate concepts—we ensure they're detailed enough to navigate planning efficiently.
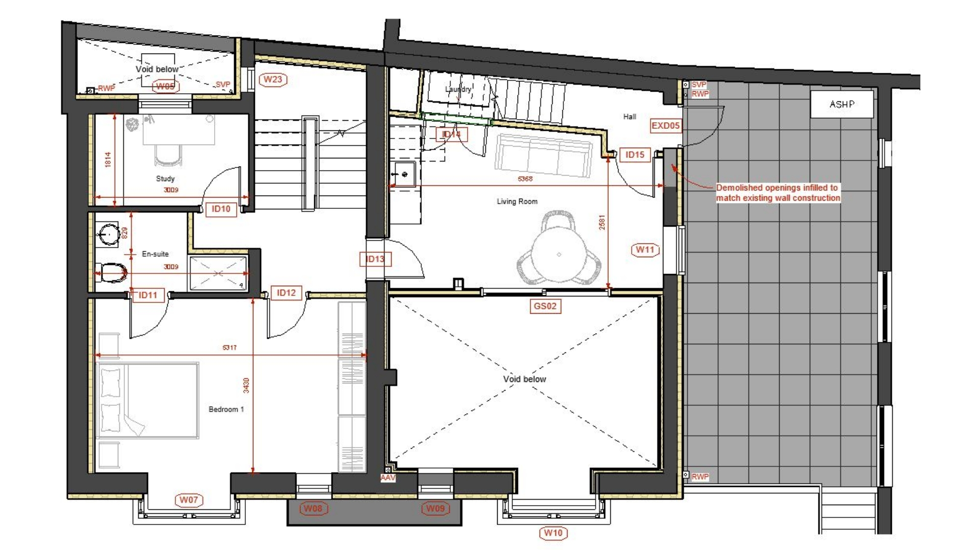
We specialise in translating your design into a compliant, coordinated set of technical drawings ready for Building Control approval. With a strong grasp of UK regulations (England, Scotland, and Wales), we resolve the practical and performative aspects—insulation, ventilation, water tightness —before they become issues on site.
This is where your project gains its sharpest definition. We support you in developing cost and build-ready drawing sets and refined 3D models, resolving critical junctions, creating quantifiable schedules and ensuring the technical detail aligns with your intent. Every drawing we produce is tailored to reduce ambiguity and increase site clarity.

We help you approach planning with clarity and confidence. Through accurate 3D models, technical drawings, and visual studies, we present your ideas clearly to local authorities while staying grounded in buildability. We don't just illustrate concepts—we ensure they're detailed enough to navigate planning efficiently.
We specialise in translating your design into a compliant, coordinated set of technical drawings ready for Building Control approval. With a strong grasp of UK regulations (England, Scotland, and Wales), we resolve the practical and performative aspects—insulation, ventilation, water tightness —before they become issues on site.


This is where your project gains its sharpest definition. We support you in developing cost and build-ready drawing sets and refined 3D models, resolving critical junctions, creating quantifiable schedules and ensuring the technical detail aligns with your intent. Every drawing we produce is tailored to reduce ambiguity and increase site clarity.
Gree
North Birbiston
Middle Street
Status: Construction
A £3 million build with a combined floor area of 1,300 m², this mixed-use residential project with a commercial wing was every bit as complex as it sounds. From Building Control through to completion, our coordination, detailing, clash detection, and 3D modelling expertise helped turn this self-build into a reality for the architect and their client.
Status: Planning
Assisting the architect in subdividing a property to create space for a second dwelling, we faced a particularly challenging planning stage. To support the process, we modelled the site with precise geometry and accurate levels, producing a true-to-condition 3D model and drawings of the proposed property within its surroundings.
Status: Detailed Design
We're helping bring a creative architect's vision for their musician client to life. This distinctive project combines two properties into one, with acoustics carefully designed to accommodate two recording studios, a technical room, and a penthouse with a terrace. Featuring a bold façade that blends graffiti art with Spanish tile elements, the project stands out for its originality and character.
Gree
Status: Construction
A £3 million build with a combined floor area of 1,300 m², this mixed-use residential project with a commercial wing was every bit as complex as it sounds. From Building Control through to completion, our coordination, detailing, clash detection, and 3D modelling expertise helped turn this self-build into a reality for the architect and their client.
North Birbiston
Status: Planning
Assisting the architect in subdividing a property to create space for a second dwelling, we faced a particularly challenging planning stage. To support the process, we modelled the site with precise geometry and accurate levels, producing a true-to-condition 3D model and drawings of the proposed property within its surroundings.
Middle Street
Status: Detailed Design
We're helping bring a creative architect's vision for their musician client to life. This distinctive project combines two properties into one, with acoustics carefully designed to accommodate two recording studios, a technical room, and a penthouse with a terrace. Featuring a bold façade that blends graffiti art with Spanish tile elements, the project stands out for its originality and character.
Our service can help Architects and Architectural Designers in several ways: Reduce project overload by providing extra help on a project, avoiding the need for permanent hires and all associated expenses and commitments. Enable Architects and Architectural Designers who lack the technological expertise or resources to continue creating stunning designs with the help of our visualisation, drafting and modelling services.
3D Modelling adds volume to AutoCAD giving it the benefits of the 3rd Dimension, producing drawings in 3D provides:
Efficiency - making a change to a model, updates all drawings instantly;
Clashes - noticing them becomes easier in 3D enabling a fix in the design stages;
Parametric design - Adaptive and intelligent schedule creation.
We can continue listing benefits as it’s really not limited to these. Important thing to remember is that 3D Modelling is the tool enabling the current stage of Architectural evolution and we can navigate these waters with you.
3D Modelling gained wide adoption in Europe in 2009 and we have been actively involved with this technology since 2012, We were ‘BIM technicians’, ‘Architectural Technologists’ and ‘BIM coordinators’ for a range of small and unknown to top AJ 15 companies, actively modelling and working for these practices before the inception of OZ to deliver award winning projects for them which we now aim to showcase under the banner of OZ Technology.
Knowing 3D Software is always a benefit, but no experience is totally fine, that’s why we are here. It doesn’t matter if you’re used to AutoCAD or even hand sketching, we as the Technologists navigate your model for you, we meet online and go through the model together, if you need a drawing we produce it, if you need .dwg formats to send to consultants, we export them for you. In short, we deal with the drawings and enable you to deal with your client and project knowing the Technicals of the project are taken care of.
Our biggest priority is providing a high-quality service and product. We want to continue working with you, it makes sense that doing a good job where you're left happy will give us the best chance at that.
That being said we are commitment to OZ and the goals we are actively working on to achieve CIAT and ISO9001 certificate accreditations.
OZ Technology uses cookies
Cookies make our website work properly and securely. OZ Technology uses functional, analytical and tracking cookies. Learn more about what these cookies mean, how we use cookies and how you can manage them in our cookie policy, by clicking on "More information about cookies".
If you agree to all of our cookies, click on "OK". You will then get the best user experience with brand enriched content & relevant products and services. Do you want to change your cookie preferences? Then click on "Change settings".
Changes settings
Best experience. I accept functional, analytical and tracking cookies. This will give you the best user experience with brand enriched content & relevant products and services.
Customized experience. I only accept functional and analytical cookies.
Working website. I only accept functional cookies. These cookies are necessary for the website to work. Without these cookies, not all elements of the website can be loaded.