
OZ Technology is a technical architecture consultancy focused on keeping projects true to their design vision while meeting the realities of construction. We work as collaborators, not just service providers — becoming part of the team to solve problems, coordinate technical delivery, and guide key decisions as a project develops.
Securing planning approval often depends on how clearly a project's intent is communicated. We support architects and project leads by presenting schemes with accuracy and impact — from full 3D site models to contextual views that show how a proposal sits within its environment. Our goal is to reveal the project's potential and give planning officers confidence in its scale, design, and setting.
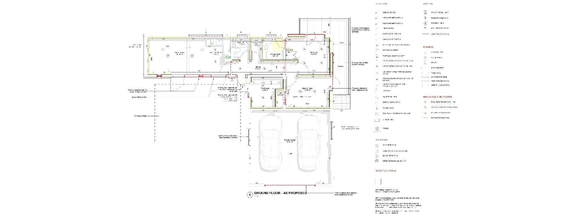
At this stage, detail matters. We prepare coordinated drawing packs that contain the right level of information for compliance, balancing precision with flexibility. Working alongside building control officers and project managers, we supply missing data, adapt details where required, and present information in the clearest way possible to secure approvals — even with councils that impose stricter demands.
The result? A project that held tightly to its original design intent, even as site conditions shifted and decisions evolved. The client — managing their own build — was able to deliver to an impressively high standard, supported throughout by the technical information and tools we provided.
That's the value of embedded technical consultancy: clarity at each stage, coordination between people and information, and confidence that what's drawn can actually be built.
On complex builds, technical input is the difference between design intent and costly mistakes. One of our recent projects — a 1,200m² self-build with bespoke feature trusses, large-span glazed facades, and over 20 unique build-ups — required continuous technical oversight. We created a fully coordinated 3D digital twin, drawing on our BIM coordination experience, to bring all consultant information into a single environment.
This allowed the design team to navigate the model, resolve issues early, and keep site progress aligned with the design vision. Our performance schedules and internal elevations gave contractors and clients alike clear, construction-ready information — room by room, element by element.
Our service can help Architects and Architectural Designers in several ways: Reduce project overload by providing extra help on a project, avoiding the need for permanent hires and all associated expenses and commitments. Enable Architects and Architectural Designers who lack the technological expertise or resources to continue creating stunning designs with the help of our visualisation, drafting and modelling services.
3D Modelling adds volume to AutoCAD giving it the benefits of the 3rd Dimension, producing drawings in 3D provides:
Efficiency - making a change to a model, updates all drawings instantly;
Clashes - noticing them becomes easier in 3D enabling a fix in the design stages;
Parametric design - Adaptive and intelligent schedule creation.
We can continue listing benefits as it's really not limited to these. Important thing to remember is that 3D Modelling is the tool enabling the current stage of Architectural evolution and we can navigate these waters with you.
3D Modelling gained wide adoption in Europe in 2009 and we have been actively involved with this technology since 2012, We were 'BIM technicians', 'Architectural Technologists' and 'BIM coordinators' for a range of small and unknown to top AJ 15 companies, actively modelling and working for these practices before the inception of OZ to deliver award winning projects for them which we now aim to showcase under the banner of OZ Technology.
Knowing 3D Software is always a benefit, but no experience is totally fine, that's why we are here. It doesn't matter if you're used to AutoCAD or even hand sketching, we as the Technologists navigate your model for you, we meet online and go through the model together, if you need a drawing we produce it, if you need .dwg formats to send to consultants, we export them for you. In short, we deal with the drawings and enable you to deal with your client and project knowing the Technicals of the project are taken care of.
Our biggest priority is providing a high-quality service and product. We want to continue working with you, it makes sense that doing a good job where you're left happy will give us the best chance at that.
That being said we are commitment to OZ and the goals we are actively working on to achieve CIAT and ISO9001 certificate accreditations.
OZ Technology uses cookies
Our website works properly and securely thanks to cookies that store your preferences. OZ Technology uses functional, analytical and tracking cookies. Learn more about what these cookies do, how we use them, and how you can manage your settings in our cookie policy by clicking on “More information”.
If you agree to all cookies, click “OK” to enjoy the best user experience with brand-enriched content and relevant products and services. Want to change your preferences? Click “Change settings.”
Changes settings
Best experience. I accept functional, analytical and tracking cookies. This will give you the best user experience with brand enriched content & relevant products and services.
Customized experience. I only accept functional and analytical cookies.
Working website. I only allow essential cookies that are necessary for the site to function properly. Without them, some parts of the website may not load correctly.